Italiano
74.000 €

LOCALE COMMERCIALE A SAVIGNANO SUL PANARO (MO)

Negozio in vendita • Savignano sul Panaro (Magazzino) - via faloppe, 70
BARBIERI SERVIZI IMMOBILIARI propone in ESCLUSIVA a Savignano sul Panaro, in zona comoda e ben servita, un interessante locale commerciale con ingresso indipendente e quattro ampie vetrine su strada, perfette per dare visibilità a qualsiasi attività.
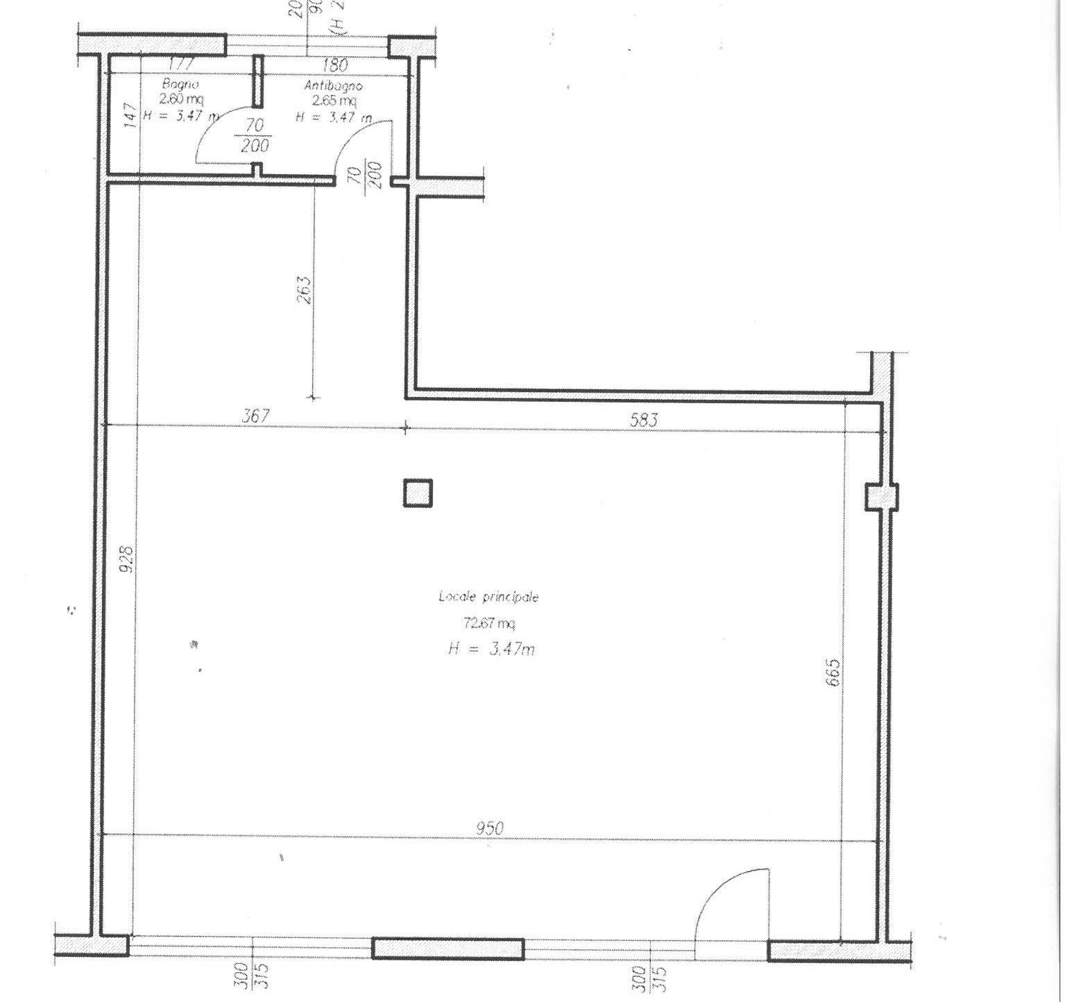
L’immobile è un open space luminoso, facilmente modulabile secondo le proprie esigenze, completo di bagno e antibagno. Si trova al piano terra di un contesto ordinato, con comodo parcheggio condominiale a disposizione, ideale per clienti o visitatori.
Una delle caratteristiche più interessanti è la possibilità di trasformarlo in appartamento: una soluzione versatile che si presta sia a chi cerca un locale per la propria attività, sia a chi desidera investire in un immobile da convertire in abitazione.
Perfetto per chi cerca uno spazio da personalizzare, con ottima visibilità e in una posizione ben collegata.

📍 Savignano sul Panaro
🔑 Ingresso indipendente
📐 Open space con bagno e antibagno
🚗 Parcheggio condominiale
🏠 Possibilità di cambio d’uso in residenziale

Per maggiori informazioni o per fissare una visita, non esitare a contattarci.
Caratteristiche principali
Codice
V000813
Città
Savignano sul Panaro (Magazzino)
Categoria
Negozio
Prezzo
74.000 €
Locali
3
Mq
74
Piano
Terra
Classe energetica
G
Stato Immobile
Da Ristrutturare
Grado
Medio
Posizione
Periferia
Lati Liberi
1
Arredi
Non Arredato
Riscaldamento
Autonomo
Tipo Riscaldam.
Caldaia
Tipo Impianto
Termosifoni
Accesso Disabili
Nessuna Barriera

Accessori: Passaggio Automobilistico, Ripostiglio

Mappa
via faloppe 70, Savignano sul Panaro (MO)
Video
Condividi su
Cookie preference