Italiano
185.000 €

GRAZIOSO TRILOCALE - VIGNOLA ZONA BRODANO

Appartamento in vendita • Vignola - via boschetti
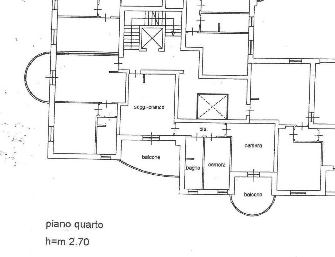
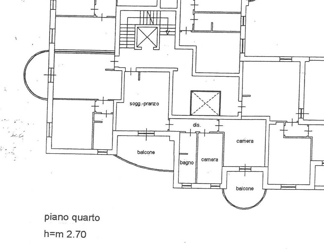
BARBIERI SERVIZI IMMOBILIARI propone in ESCLUSIVA TRILOCALE al 4° piano servito da ascensore a Vignola in zona Brodano, all'interno di un contesto residenziale tranquillo e vicino a tutti i servizi.
Ingresso sul soggiorno con angolo cottura, un ambiente luminoso e accogliente con accesso al primo terrazzo, ideale per momenti di relax. Un pratico disimpegno, divide la zona giorno dalla zona notte, bagno funzionale e completo, camera singola e camera matrimoniale, quest’ultima con secondo terrazzo.
L’appartamento si distingue per la buona distribuzione degli spazi e la luminosità garantita dal piano alto. È inoltre dotato di impianto di aria condizionata e zanzariere, elementi che assicurano comfort ed efficienza in ogni stagione.
Completano la proprietà garage al piano terra, cantina e posto auto scoperto di pertinenza.

🏠 TRILOCALE AL 4° PIANO CON ASCENSORE
📍 Zona Brodano – Vignola, contesto tranquillo e residenziale
☀️ Soggiorno con angolo cottura
🌿 Due terrazzi
🛏️ Due camere: una matrimoniale e una singola
❄️🔥 Riscaldamento autonomo e aria condizionata
🚗 Garage, cantina e posto auto
🛒 Comodo ai principali servizi

Soluzione ideale per famiglie o giovani coppie alla ricerca di un’abitazione pronta da vivere, inserita in una zona ben servita e piacevolmente residenziale.
Caratteristiche principali
Codice
V000843
Città
Vignola
Categoria
Appartamento
Prezzo
185.000 €
Locali
3
Camere
2
Bagni
1
Mq
86
Box
1
Posti auto
1
Terrazzi
2
Piano
4
Classe energetica
E
286,54 kWh/m²a
Stato Immobile
Buono
Grado
Medio
Posizione
Periferia
Panorama
Vista Aperta
Giardino
Comune
Tipo Soggiorno
Soggiorno
Tipo Cucina
Angolo Cottura
Riscaldamento
Autonomo
Tipo Riscaldam.
Caldaia
Tipo Impianto
Termosifoni
Fonte Energetica
Metano
Acqua Calda
Autonoma
Raffrescamento
Split
Infissi
Legno Doppio Vetro
Serramenti
Buono

Accessori: Aria Condizionata, Ascensore, Doppi Vetri, Passaggio Automobilistico, Porta Blindata, Video Citofono, Zanzariere

Mappa
via boschetti , Vignola (MO)
Video
Condividi su
Cookie preference